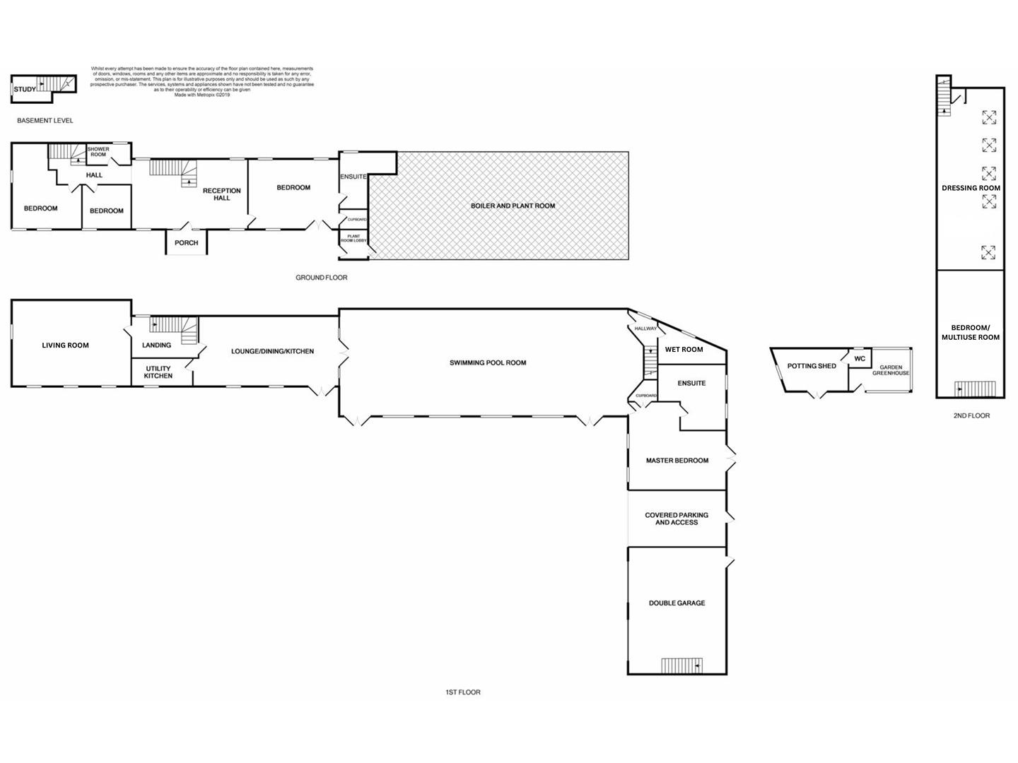
- Exceptional Detached Property
- Popular Village Location
- Generously Sized Rooms Throughout
- Open Plan Kitchen Lounge Diner
- Swimming Pool Room
- 4 /5 Bedrooms
- Ample Parking & Double Garage
- Large Mature Gardens
- Additional 6 Acres Available
5
3
4
TES Property bring to the market this stunningly presented and impressive family home located in the picturesque village of Little Cawthorpe, only 3.4 miles to the Georgian market town of Louth and all it’s amenities. This exceptional property is set within grounds of approximately 1.2 acres and benefits from complete privacy. Set back from the road with a long sweeping driveway leading to a double garage and car port, there is ample parking for everybody.
This property is truly something not to be missed! Internally it offers generously sized rooms throughout including 4/ 5 bedrooms, two en-suites and two additional shower rooms, a spectacular dressing room, a good size living room and utility room. The heart of the house is the attractive open plan kitchen lounge diner which opens into the breath taking swimming pool room overlooking the gardens, providing a peaceful and relaxing atmosphere yet perfect to enjoy with family or friends.
Viewing is a must truly appreciate what this delightful property has to offer!
We have been advised there is the opportunity to purchase an additional 6 acres of land via separate negotiation. Please contact our office if you wish to discuss further.
Location - Little Cawthorpe -
Little Cawthorpe is a sought-after rural village situated approximately 3 miles from Louth, 20 miles from Grimsby and 31 miles from Lincoln.
This attractive village is well known for it’s popular Royal Oak Inn, also known as ‘The Splash’ which many enjoy a lovely walk along side the Long Eau which leads to the Inn, along with a range of beautiful countryside walks. The village is within close proximity to Kenwick Park golf club and its superb leisure facilities.
Entrance Porch -
Oak framed porch with low brick side walls and slate roof.
Reception Hall - 4.719m x 7.839m (15'5" x 25'8")
Enter the property through a timber front door into the large welcoming entrance where there is a feature fireplace, multiple timber double glazed windows to the front and rear, three radiators and staircase leading to the first floor. Doors lead into bedroom 2 and an opening into the hallway.
Inner Hall -
Doors lead into the shower room and two bedrooms and stairs leading down to the study.
Bedroom 3 - 5.792m x 4.660m (max) (19'0" x 15'3" (max))
A spacious L-shaped double bedroom with dual aspect double glazed timber windows to the front and side, coving to the ceiling and two radiators.
Bedroom 4 / Gym Room - 2.960m x 3.303m (max) (9'8" x 10'10" (max))
With double glazed timber window to the front and a radiator.
Shower Room - 3.052m x 1.514m (10'0" x 4'11")
Walk in shower, circular wash hand basin with mixer tap in vanity unit with storage cupboard, and a w.c. Tiling to the floor and splashbacks, spotlights to the ceiling and a double glazed timber window to the rear.
Study - 1.773m x 2.680m (max) (5'9" x 8'9" (max))
Stairs lead down into the study where there is a double glazed timber window to the side, vertical radiator, spotlights to the ceiling and tiled flooring.
Bedroom 2 - 9.676m x 6.066m (31'8" x 19'10")
Back through the reception hall is the spacious second bedroom/guest bedroom, the room benefits from a walk in wardrobe, French doors leading out onto a patio area, three double glazed windows, two radiators and a door into the en-suite.
En Suite - 1.902m x 3.786m +1.477m x 1.982m (6'2" x 12'5" +4'
L-shape room fitted with a four piece suite consisting of an oval bath with shower attachment, walk in shower, W.C. and wash hand basin. The room is fully tiled with spotlights to the ceiling, a heated towel rail and a double glazed timber window.
Stairs to First Floor Landing -
A grand return staircase leads from the Reception Hall to a gallery landing accessing the living room and kitchen, there is a double glazed timber window to the rear.
Living Room - 7.98m x 5.77m (26'2" x 18'11" )
Good size room with vaulted ceilings with wooden exposed beams, the focal point of the room is the attractive fireplace with tiled hearth, bricked surround and wooden mantle. Dual aspect windows create a bright and airy room. Three radiators.
Lounge Dining Kitchen - 9.64m x 4.69m (31'7" x 15'4" )
Kitchen Area -
Fitted with an attractive kitchen comprising a range of wall, base and drawer units, pantry cupboard and contrasting island, both with matching worktops over and incorporating an inset sink with Quooker tap. The kitchen benefits from a range of integrated appliances including four ‘Miele’ ovens, dishwasher, fridge freezer and wine fridge. The central island also has a range of drawer units and cupboard space along with a four ring hob with downdraft extractor and power points. A door leads into the utility.
Utility - 1.85m x 4.05m (6'0" x 13'3" )
Fitted with matching wall and base units to the kitchen with worktop over incorporating an inset sink, space and plumbing for washing machine and timber dryer, vertical radiator, spotlights to the ceiling and double glazed timber window to the front.
Lounge Diner Area -
Open plan from the kitchen with a fitted seating bench with space for a dining table, there is ample space for a sofa with fitted TV unit with built in storage cupboards. Double glazed timber windows and French doors to the front provide a lovely bright space with additional double doors leading through into the swimming pool room. Further French doors access a beautiful balcony with iron railings to the front of the property which has stunning views of the grounds.
Swimming Pool Room - 16.27m x 8.70m (53'4" x 28'6" )
This stunning room is of a good size and features a well maintained indoor swimming pool with Terrazzo tiling and has a Roman end with steps down and slopes to a deeper depth. Pine panelled vaulted ceiling with feature wooden beams to the ceiling, multiple south facing windows and French doors along one side overlooking and leading out to the gardens, up and down wall mounted lighting, underfloor heating and tiled floor. A door leads into the hallway and to the wet room and upstairs.
Bedroom 1 - 6.6m x 5.89m (max) (21'7" x 19'3" (max))
Large double bedroom with built in wardrobe, tiled flooring with underfloor heating, coving to the ceiling, double glazed timber windows to the front with French doors out to the rear courtyard. A door leads into the en-suite.
En Suite - 4.39m x 4.38m (max) (14'4" x 14'4" (max))
Good size room fitted with an attractive five piece suite consisting of a free standing bath, fully tiled walk in shower, w.c, bidet and a his and hers sink unit with multiple storage cupboards and drawers. There is some attractive panelling to one wall with double glazed timber windows, tiled flooring with underfloor heating, heated towel rail and extractor.
Hallway -
Door into wet room and stairs leading up to first floor.
Wet Room - 2.71m x 3.30m ( max) (8'10" x 10'9" ( max))
Fully tiled room with shower, w.c and wash hand basin with cupboard below. There is a heated towel rail, double glazed timber window, extractor and spotlights to the ceiling.
Dressing Room - 8.13m x 3.66m (max) (26'8" x 12'0" (max))
Sizeable room with a range of fitted wardrobes with a central island with drawers and display glass top. There are two radiators, access to loft space, Velux windows 4, spotlights to the ceiling. Steps lead up with a door into the Sunbed Room/ bedroom.
Sunbed Room /Bedroom - 4.59m x 4.39m (max) (15'0" x 14'4" (max) )
Multiuse room with two radiators, Velux window and spotlights to the ceiling.
Outside -
Plant Room / Store -
A vast storage room which houses the twin Worcester gas fired boilers connecting to the zoned heating system of the property, plumbing for a washing machine, consumer units and a range of equipment used for servicing the property and pool.
Double Garage -
Having two remote controlled roller doors and rear personnel access door. Steps lead up to the attic storage area, with power and lighting double-glazed skylight window.
Gardens -
The property is accessed via electric timber gates onto a long sweeping driveway along the front of the property which leads down to the double garages and car port. To the side of the property is an enclosed walled garden being fully paved and features a range of plants and shrubs. The area can be accessed via the secure gateway to the side, through gates to the rear of the car port and garage and via French doors from Bedroom 1.
The property stands in beautiful grounds of approximately 1.2 acres and benefits from total privacy throughout. The gardens comprise of a variety of mature hedges and trees as well as large elevated lawns. To the far side of the garden is a wooden bridge providing access to the two rear fields.
Summer House & Potting Room -
A peaceful summer house measuring 4.75m x 2.89m, with power, lighting, T.V aerial point, French doors and windows looking out to courtyard garden, storage cupboard and further benefitting from a w.c and wash hand basin. A door provides access to the Potting Room which measures 3.35m x 3.10m and has tiled flooring, lighting and windows.
Additional Land Available -
There is the opportunity to purchase some additional land (approximately 6 acres) via separate negotiation. The land is split into two fields both currently used as paddocks.
Services -
Mains water, gas, drainage and electricity are understood to be connected with underfloor heating to some rooms. The agents have not tested or inspected the services or service installations and buyers should rely on their own survey.
Tenure -
The property is believed to be freehold and we await solicitors confirmation.
Brochure Prepared -
December 2025.
Viewings -
By prior appointment through TES Property office in Louth 01507 601633 admin.louth@tes-property.co.uk
Opening Hours -
Monday to Friday 9:00am to 5:00pm
Saturday 9:00am to 1:00pm
Free, no-obligation valuation for all properties or land in Lincolnshire and surrounding areas
Book a valuationPlease fill out the form below to arrange a viewing
