- Three Bed Semi Detached House
- Popular Village Location
- Kitchen Diner & Living Room
- Downstairs W.C
- Patio Doors to Rear Garden
- Bathroom & En-Suite
- Bathroom & Kitchen Allowance Included
- Driveway
- Solar Panels
3
1
2
It is a pleasure for TES Property to offer for sale Plot 2, a luxury semi detached house located on a small development in Holton Le Clay built by the well known C & L Fairburn Properties.
This exclusive development offers a range of semi detached properties, all tastefully designed throughout.
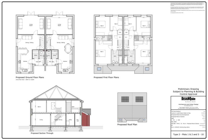
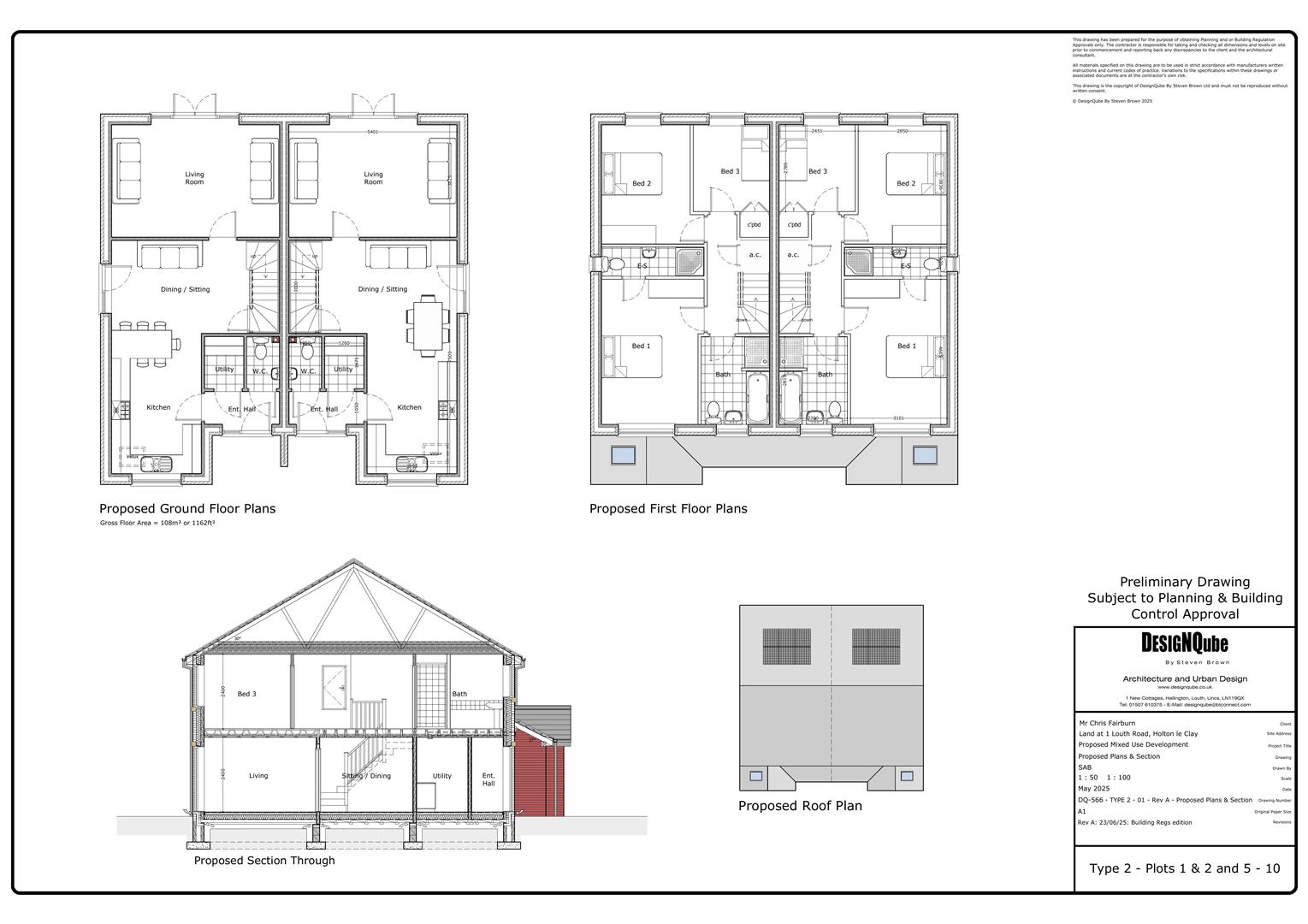
Plot 2 comprises an entrance hall with ground floor w.c and utility off, a kitchen diner, living room with French doors out to the rear garden, three bedrooms with an en-suite to bedroom 1 and an additional family bathroom.
Externally the property benefits from front and rear gardens and a driveway
Viewing is highly recommended!
About the Developer -
C & L Fairburn Properties Ltd are a family run development company who have over 14 years experience creating luxury dream homes in Lincolnshire!
C & L Fairburn ensure that each and every property is designed in a way that will meet all of your needs to create your perfect dream home! With spacious floorplans and attention to detail inside and out, these exclusive homes offer an unmatched level of comfort and style.
Whether you are a first time buyer wanting to buy your dream first home, wanting to relocate or a change in size, C & L Fairburn will have your back!
Location - Holton Le Clay -
The popular village of Holton-le-Clay benefits from a range of amenities including village shops, takeaways, business park, GP surgery, children’s day care and a beauty salon and much more.
There is also an infants school and junior school along with Tollbar Academy being just a short drive away, the village is also within the catchment area for Louth’s academies and grammar school.
Property Specification -
-Kitchen with design allowance
-Bathrooms (half tiled) with bespoke bathroom allowance
-Electric roller Garage Door
-Alarm system
-Built to the new building regulations
-Porcelain patio area
-Roof inset solar panels
-Hard flooring and carpet allowance
There are also further upgrade packages available allowing you to design your dream home!
Entrance Hall -
W.C - 1.671m x 1.050m (5'5" x 3'5" )
Utility - 1.260m x 1.671m (4'1" x 5'5" )
Kitchen Diner - 7.500m (max) x 5.401m (max) (24'7" (max) x 17'8" (
Living Room - 5.401m x 3.675m (17'8" x 12'0" )
Landing -
Bedroom 1 - 3.101m x 4.665m (10'2" x 15'3" )
En-Suite - 3.299m x 0.93m (10'9" x 3'0")
Bedroom 2 - 2.850m x 3.836m (9'4" x 12'7" )
Bedroom 3 - 2.451m x 2.789m (8'0" x 9'1" )
Bathroom - 2.815m x 2.200m (9'2" x 7'2" )
Services -
Mains water, gas, drainage and electricity are understood to be connected. The agents have not tested or inspected the services or service installations and buyers should rely on their own survey.
Tenure -
The property is believed to be freehold and we await solicitors confirmation.
Brochure Prepared -
January 2026.
Viewings -
By prior appointment through TES Property office in Louth 01507 601633 admin.louth@tes-property.co.uk
Opening Hours -
Monday to Friday 9:00am to 5:00pm
Saturday 9:00am to 1:00pm
Free, no-obligation valuation for all properties or land in Lincolnshire and surrounding areas
Book a valuationPlease fill out the form below to arrange a viewing
